| ID # | 11512390 |
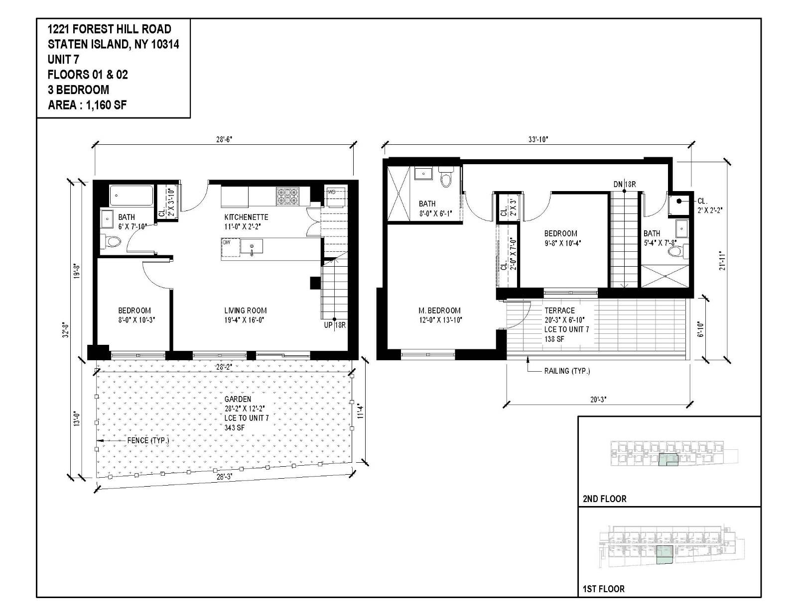
| Détails | 3 chambre, 3 sdb, pets OK, garage, climatiseur, extérieur: 0.02 acres, Intérieur: 1160 ft2, 108m2, Le bâtiment a 2 étages Âge de l'annonce (DOM): 145 jours |
| Année de construction | 2026 |
| Frais d'entretien | $444 |
| Taxes (par an) | $2,341 |
| Type de garage | Built |
| English Webpage | |
![]() |
This luxury 3-bedroom, 3-bathroom residence offers thoughtful design across two levels. Currently under construction, the home will feature one bedroom conveniently located on the first floor. Enjoy a private garden and a spacious terrace on the second floor-ideal for indoor-outdoor living. The exterior is finished with high-performance Thermawood panels by Lunawood and sleek stucco, complemented by Pella windows and balcony/terrace doors for energy efficiency and quiet comfort. Inside, you'll find engineered wood flooring in all bedrooms, living areas, and kitchenettes, with durable porcelain tile in the bathrooms and washer/dryer closets. Unit includes a hookup for an electric ventless dryer (appliances not provided). 2 Zone heating and cooling system. Additional amenities include assigned parking and bicycle storage in the basement. Don't miss this rare opportunity to own a stylish, well-appointed new construction home in a thoughtfully designed building! Subject to E&O. Broker is a partially owner.







