| ID # | 11541632 |
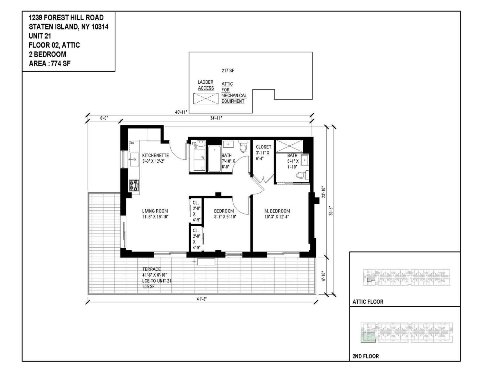
| Détails | 2 chambre, 2 sdb, pets OK, garage, climatiseur, extérieur: 0.03 acres, Intérieur: 774 ft2, 72m2 Âge de l'annonce (DOM): 146 jours |
| Année de construction | 2026 |
| Frais d'entretien | $341 |
| Taxes (par an) | $1,129 |
| Type de garage | Built |
| English Webpage | |
![]() |
Introducing a rare opportunity to own a beautifully designed, brand-new luxury 2-bedroom, 2-bathroom apartment on the second floor. Condominium currently under construction. Located in a fully electric, gas-free building, this home features high-end finishes throughout. The exterior boasts premium Thermawood panels by Lunawood and contemporary stucco, paired with energy-efficient Pella windows and balcony/terrace doors to ensure quiet comfort and excellent insulation. Inside, enjoy engineered wood flooring in all bedrooms, living areas, and kitchenettes, complemented by porcelain tile in bathrooms and washer/dryer closets. Each unit includes a hookup for an electric washer and dryer. Additional amenities include an elevator, assigned parking in the cellar garage for each unit, and a thoughtfully designed layout tailored for luxury, efficiency, and ease of living. Don't miss this chance to own a stylish, well-appointed new construction home in a highly desirable Staten Island location! Subject to errors and omissions. Broker has partial ownership interest.







