| ID # | 11541671 |
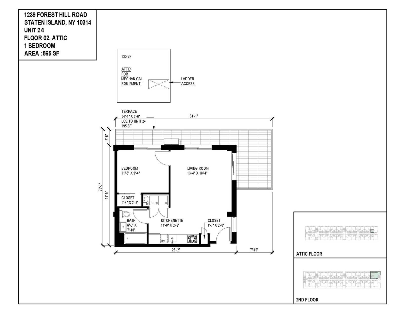
| Détails | 1 chambre, 1 sdb, pets OK, garage, climatiseur, extérieur: 0.02 acres, Intérieur: 565 ft2, 52m2 Âge de l'annonce (DOM): 147 jours |
| Année de construction | 2026 |
| Frais d'entretien | $243 |
| Taxes (par an) | $1,685 |
| Type de garage | Built |
| English Webpage | |
![]() |
Introducing a rare opportunity to own a beautifully designed, brand-new luxury 1-bedroom, 1-bathroom apartment on the second floor. Condominium currently under construction. Located in a fully electric, gas-free building, this home features high-end finishes throughout. The exterior boasts premium Thermawood panels by Lunawood and contemporary stucco, paired with energy-efficient Pella windows and balcony/terrace doors to ensure quiet comfort and excellent insulation. Inside, enjoy engineered wood flooring in all bedrooms, living areas, and kitchenettes, complemented by porcelain tile in bathrooms and washer/dryer closets. Each unit includes a hookup for an electric washer and dryer. Additional amenities include an elevator, assigned parking in the cellar garage for each unit, and a thoughtfully designed layout tailored for luxury, efficiency, and ease of living. Don't miss this chance to own a stylish, well-appointed new construction home in a highly desirable Staten Island location!







