| ID # | RLS20039129 |
| Détails | 1 chambre, lave-vaisselle, 6 unités dans le bâtiment, Le bâtiment a 3 étages Âge de l'annonce (DOM): 96 jours |
| Année de construction | 1931 |
| Bus (MTA) | 3 min du bus n° B61, B67, B69 |
| 5 min du bus n° B68 | |
| 9 min du bus n° B63 | |
| Métro | 5 min du F, G |
| Train (LIRR) | 1.7 miles de la gare « Atlantic Terminal » |
| 2.3 miles de la gare « Nostrand Avenue » | |
![]() |
Disponible pour une emménagement fin août
Le 1671 8th Avenue est un immeuble de boutique situé dans une rue résidentielle calme de Park Slope, offrant des unités entièrement rénovées qui allient de manière réfléchie le charme d'avant-guerre et les commodités modernes.
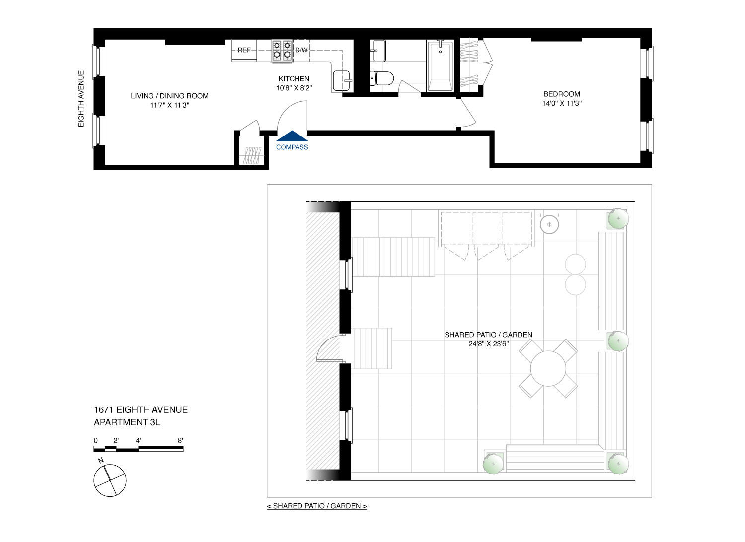
L'appartement 3L est lumineux et bien proportionné, bénéficiant d'une abondance de lumière naturelle grâce à deux fenêtres donnant sur le salon orientées à l'ouest, surplombant le 8ème Avenue. Cette résidence toute neuve présente des détails charmants tels que des planchers en bois franc rénovés et de la brique apparente, tout en offrant des commodités modernes comme la climatisation centrale via un système HVAC divisé et une cuisine bien équipée avec des appareils en acier inoxydable, y compris un lave-vaisselle, ainsi qu'un grand espace de rangement. La chambre orientée à l'est, située à l'arrière de l'appartement, est d'un calme absolu et équipée d'un placard de taille appropriée pour un maximum de fonctionnalité.
Le 1671 8th Avenue est situé au cœur de Park Slope, dans la partie sud, seulement à deux pas de Prospect Park. Les résidents ont accès au jardin extérieur commun avec une terrasse et un grill, ainsi qu'une buanderie partagée au sous-sol. L'immeuble est entouré de certains des meilleurs restaurants et commerces du quartier et est idéalement situé près de plusieurs lignes de métro pour un trajet sans encombre jusqu'à la ville, y compris les lignes F / G à Prospect Park-15 St et le R à Prospect Av.
Available for late August move-in
1671 8th Avenue is a boutique building on a quiet, residential street in Park Slope offering gut renovated units that showcase a thoughtful blend between pre-war charm and modern-day conveniences.
Apartment 3L is bright and well-proportioned, boasting an abundance of natural light through two West-facing living room windows overlooking 8th Avenue. This brand-new residence features charming details like refinished hardwood floors and exposed brick while offering modern amenities like central air through a split HVAC system and a well-appointed kitchen with stainless steel appliances, including a dishwasher, and ample cabinetry for storage. The East-facing bedroom tucked away in the rear of the apartment is pin-drop quiet and outfitted with a nicely sized closet for maximum functionality.
1671 8th Avenue is located in the heart of southern, residential Park Slope, only a stone’s throw from Prospect Park. Residents enjoy access to the common outdoor garden with a deck and grill as well as a shared laundry room in the basement. The building is surrounded by some of the neighborhood’s best restaurants and shopping and is conveniently near various subway lines for seamless commuting into the city, including the F / G lines at Prospect Park-15 St and the R at Prospect Av.
This information is not verified for authenticity or accuracy and is not guaranteed and may not reflect all real estate activity in the market. ©2025 The Real Estate Board of New York, Inc., All rights reserved.






