| ID # | RLS20046267 | 
| Détails | 5 chambre, 3 sdb, Intérieur: 2880 ft2, 268m2, 2 unités dans le bâtiment, Le bâtiment a 2  étages Âge de l'annonce (DOM): 57 jours | 
| Année de construction | 1995 | 
| Taxes (par an) | $8,460 | 
| Bus (MTA) | 1 min du bus n° B52 | 
| 2 min du bus n° B46 | |
| 5 min du bus n° B38, B47, Q24 | |
| 6 min du bus n° B26 | |
| 8 min du bus n° B15 | |
| Métro | 6 min du J | 
| 7 min du Z | |
| Train (LIRR) | 1.3 miles de la gare « Nostrand Avenue » | 
| 1.6 miles de la gare « East New York » | |
|  | 
Une opportunité vous attend au 929 Gates Avenue   
Maison de ville biplex avec stationnement ; potentiel incroyable dans le quartier prisé de Brooklyn   
Apportez votre vision et votre créativité à cette spacieuse maison de ville biplex au 929 Gates Avenue, idéalement située dans le cœur de Bedford-Stuyvesant, Brooklyn. Avec une disposition flexible et une empreinte généreuse, cette propriété est parfaite pour les propriétaires ou les investisseurs à la recherche d'une maison nécessitant principalement des mises à jour cosmétiques avec un fort potentiel de revenus.   
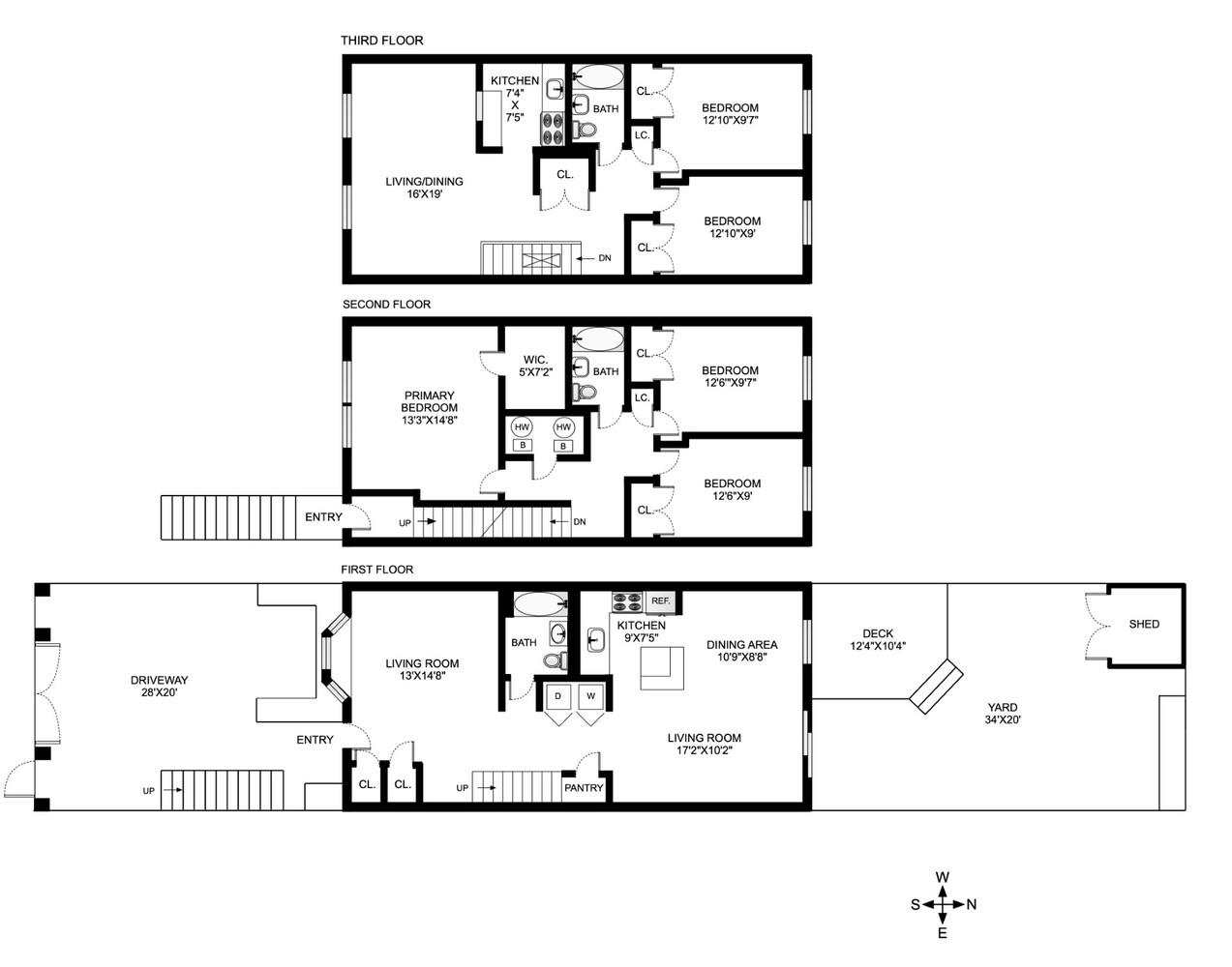
Répartie sur trois niveaux, la maison comprend 5 chambres et 3 salles de bains, actuellement configurée en duplex de 3 chambres et 2 salles de bains pour le propriétaire avec un logement locatif de 2 chambres au-dessus, idéal pour générer des revenus, accueillir des invités ou convertir en une spacieuse résidence unifamiliale.   
Duplex du propriétaire   
Le duplex offre une disposition classique et fonctionnelle. Au niveau principal, vous trouverez :   
- Un salon lumineux   
- Salle de bains complète   
- Buanderie   
- Une grande cuisine ouverte avec salle à manger offrant un accès direct au jardin privé    
Le jardin, équipé d'une terrasse et d'un abri, est un havre de paix agrémenté d'arbustes matures.   
À l'étage, le duplex se poursuit avec trois chambres de taille généreuse et une deuxième salle de bains complète. Avec quelques mises à jour cosmétiques, cet étage offre un grand potentiel pour un espace de vie calme et moderne.   
Logement locatif au dernier étage   
L'appartement de 2 chambres au dernier étage a sa propre entrée privée par des escaliers extérieurs. Récemment peint et avec une toute nouvelle moquette, l'unité comprend :   
- Salle de bains complète   
- Raccordement pour lave-linge/sèche-linge   
- Chauffe-eau séparé   
- Espace de vie, salle à manger et cuisine à aire ouverte   
C'est une unité locative prête à emménager qui peut générer un revenu immédiat, avec ou sans améliorations supplémentaires.   
Caractéristiques clés   
- Allée privée et sécurisée avec place pour 2 voitures   
- Disposition flexible pour deux familles   
- Jardin avec plantes matures, terrasse, abri et espace de divertissement   
- Emplacement privilégié à Bed-Stuy   
Située à seulement deux blocs de la ligne J à Gates Avenue, avec un accès facile aux lignes A/C à Utica Avenue et au bus B52 juste à l'extérieur, cette maison offre une connectivité pratique à travers Brooklyn et Manhattan.   
Profitez des valeurs sûres du quartier :   
Chez Oscar, Trad Room et dar525 pour dîner   
Saraghina pour des pizzas artisanales   
Marian's pour des cocktails
Opportunity Awaits at 929 Gates Avenue 
   Two-Family Townhouse with Parking; Incredible Potential in Prime Brooklyn 
  
 DEAL FELL THROUGH. 
 ALL SHOWINGS ARE BY APPOINTMENT. 
 Bring your vision and creativity to this spacious                                                                          two-family townhouse at                                                                          929 Gates Avenue, ideally located in the heart of                                                    Bedford-Stuyvesant, Brooklyn. With a flexible layout, and a generous footprint, plus 3120 of FAR, this property is perfect for homeowners or investors seeking a home that requires                                                                          mostly cosmetic updates with                                                                          strong income-producing potential. 
 Spread across                                                                          three levels, the home features                                                                          5 bedrooms and 3 bathrooms, currently configured as a                                                                          3-bedroom, 2-bathroom owner's duplex with a                                                                          2-bedroom rental unit above-ideal for generating income, hosting guests, or converting into a spacious                                                                          single-family residence. 
   Owner's Duplex  
 The duplex offers a                                                                          classic, functional layout. On the main level, you'll find: 
       A bright living room      Full bathroom      Laundry room      A large open concept eat-in kitchen and dining room with direct access to the                                                                          private backyard  The                                                                          backyard-complete with                                                                          deck and shed-is a peaceful retreat complete with mature shrubs. 
 Upstairs, the duplex continues with                                                                          three generously sized bedrooms and a second full bathroom. With light cosmetic updates, this level offers great potential for a serene and modern living space.  
   Top-Floor Rental Unit  
 The                                                                          top-floor 2-bedroom apartment has its own                                                                          private entrance via exterior stairs. Recently                                                    painted with                                                                          brand new carpet, the unit includes: 
       Full bathroom      Washer/dryer hookup      Separate hot water heater      Open-concept living, dining, and kitchen area  It's a                                                                          move-in ready rental unit that can generate immediate income-with or without additional upgrades. 
   Key Features       Private, gated driveway with room for 2 cars      Flexible two-family layout      Backyard with mature plants, deck, shed and entertaining space    Prime Bed-Stuy Location 
This information is not verified for authenticity or accuracy and is not guaranteed and may not reflect all real estate activity in the market. ©2025 The Real Estate Board of New York, Inc., All rights reserved.







