| ID # | RLS20058616 |
| Détails | 5 chambre, 3 sdb, 2 demi-sdb, lave-vaisselle, machine à laver, sèche-linge, Intérieur: 4820 ft2, 448m2, Le bâtiment a 3 étages Âge de l'annonce (DOM): 341 jours |
| Année de construction | 1905 |
| Taxes (par an) | $12,348 |
| Bus (MTA) | 1 min du bus n° B68 |
| 2 min du bus n° B8 | |
| 6 min du bus n° B11 | |
| 8 min du bus n° B49, BM1, BM3, BM4 | |
| 9 min du bus n° B6 | |
| Métro | 5 min du B, Q |
| Train (LIRR) | 3.4 miles de la gare « Nostrand Avenue » |
| 3.6 miles de la gare « Atlantic Terminal » | |
![]() |
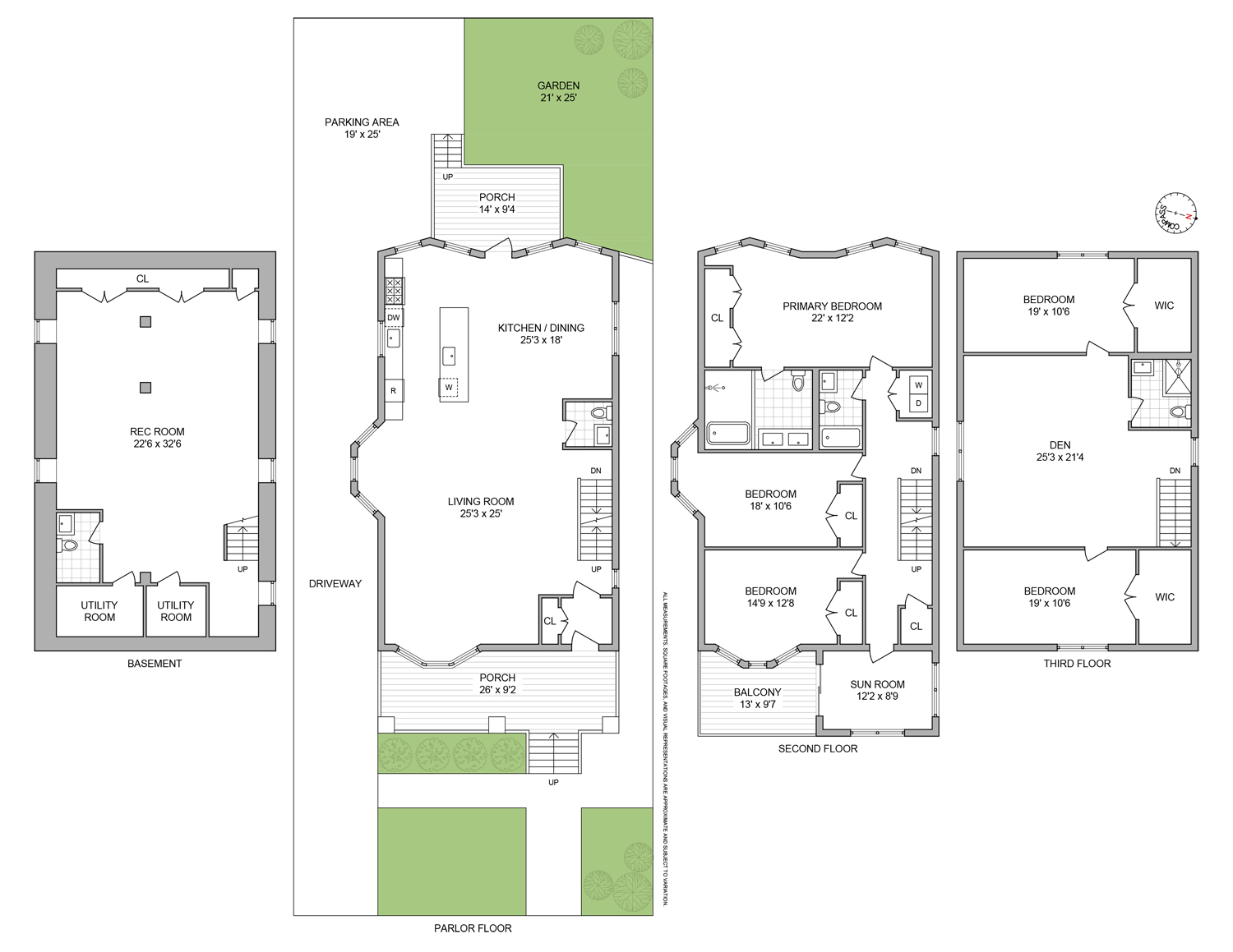
Construit à l'origine en 1905 sur un bloc pittoresque bordé d'arbres à Ditmas Park, le 728 Westminster Rd a été méticuleusement rénové pour allier harmonieusement charme historique et luxe moderne. Cette maison individuelle détachée et distinguée comprend 5 chambres, 3 salles de bains complètes et 2 toilettes, toutes agrémentées de finitions haut de gamme, de détails d'origine et de technologies de pointe.
À votre arrivée, un charmant porche avant vous accueille chaleureusement à l'étage du parloir spacieux de 1150 pieds carrés, conçu pour accueillir un grand salon et une salle à manger centrale avec aisance. À l'arrière, une cuisine gastronomique vous attend, avec un îlot, des armoires sur mesure et de magnifiques comptoirs en quartz, ainsi que deux éviers pour plus de commodité. Ce havre culinaire est équipé d'appareils en acier inoxydable Thermador de pointe, incluant un four à six brûleurs avec un robinet d'appoint, un réfrigérateur à portes françaises, un lave-vaisselle et un réfrigérateur à vin. Des portes-fenêtres s'ouvrent de la cuisine sur une terrasse extérieure, offrant des vues sereines sur le jardin et le stationnement nouvellement pavé, parfait pour recevoir ou se détendre.
Le deuxième étage révèle trois chambres généreusement proportionnées, y compris une suite principale impressionnante qui peut accueillir confortablement un lit king-size. Cette suite est agrémentée de placards du sol au plafond et d'une salle de bain attenante luxueuse, dotée de chauffage par le sol, de carrelage en marbre exquis, d'un double lavabo, d'une douche spacieuse vitrée et d'une baignoire indépendante pour une relaxation ultime. Vers l'avant de cet étage, vous trouverez deux autres chambres de taille queen, chacune offrant un espace et un confort amples. De plus, cet étage propose une charmante deuxième salle de bain complète avec chauffage par le sol et une combinaison douche/baignoire. Pour compléter ce niveau, un magnifique salon ensoleillé, bureau ou espace polyvalent s'ouvre sur un balcon, offrant une vue pittoresque sur la rue bordée d'arbres en dessous.
Le vaste troisième étage propose un deuxième salon polyvalent et ensoleillé, entouré de deux chambres de grande taille. Chaque chambre est équipée de grands placards, offrant un espace de rangement ample. Cet étage comprend également une salle de bain complète magnifiquement aménagée, dotée de chauffage par le sol et d'une douche vitrée élégante.
En bas, le spacieux sous-sol fini possède des sols carrelés, plusieurs fenêtres pour la lumière naturelle, un espace de placard ample et une autre salle de bain demi, et est idéal pour une salle de jeux, une salle de loisirs ou un salon multimédia.
Nichée sur une rue classique bordée d'arbres à Ditmas Park/Midwood, cette maison de ville réimaginée avec maîtrise est entourée de lieux de restauration locaux, du Prospect Park et du Brooklyn College. Les résidents sont à quelques pas des établissements de restauration réputés tels que Milk & Honey Cafe, Lo Duca Pizza, The Castello Plan et Di Fara. L'accès pratique aux transports en commun comprend les trains B/Q et les bus B68/B8.
Originally constructed in 1905 on a picturesque, tree-lined block in Ditmas Park, 728 Westminster Rd has been meticulously renovated to seamlessly blend historic charm with modern luxury. This distinguished, detached single-family home features 5 bedrooms, 3 full bathrooms, and 2 powder rooms, all complemented by high-end finishes, original details, and state-of-the-art technology.
As you arrive, a charming front deck warmly welcomes you into the expansive 1150sf parlor floor, designed to accommodate a grand living room and a central dining area with ease. At the rear, a gourmet kitchen awaits, featuring an island, custom cabinetry, and elegant quartz countertops, along with dual sinks for added convenience. This culinary haven is outfitted with top-of-the-line Thermador stainless steel appliances, including a six-burner stove with a pot filler, a French door refrigerator, a dishwasher, and a wine refrigerator. French doors extend from the kitchen to an outdoor deck, offering serene views of the garden and the newly paved parking area, perfect for entertaining or relaxation.
The second floor unveils three generously sized bedrooms, including an impressive primary suite that comfortably accommodates a king-sized bed. This suite is enhanced by floor-to-ceiling closets and a lavish ensuite bath, featuring radiant floor heating, exquisite marble tile, a double vanity, a spacious glass-enclosed shower, and a freestanding soaking tub for ultimate relaxation. Towards the front of this floor, you will find two more queen-sized bedrooms, each offering ample space and comfort. Additionally, this floor offers a charming second full bathroom with radiant floor heating and a shower/tub combination. Completing this level is a stunning sunroom, office, or flex space that opens to a balcony, providing picturesque views of the tree-lined street below.
The expansive third floor offers a versatile, sun-drenched second living room, bordered by two generously sized bedrooms. Each bedroom is equipped with large closets, offering ample storage space. This floor also includes a beautifully appointed full bathroom, featuring radiant floor heating and a sleek glass-enclosed shower.
Downstairs, the spacious finished basement has tiled floors, several windows for natural light, ample closet space, and another half bathroom, and is ideal for a playroom, recreational room, or media den.
Nestled on a classic, tree-lined street in Ditmas Park/Midwood, this masterfully reimagined townhouse is surrounded by local dining hotspots, Prospect Park, and Brooklyn College. Residents are just moments away from acclaimed dining establishments such as Milk & Honey Cafe, Lo Duca Pizza, The Castello Plan, and Di Fara. Convenient access to public transportation includes the B/Q trains and B68/B8 buses.
This information is not verified for authenticity or accuracy and is not guaranteed and may not reflect all real estate activity in the market. ©2025 The Real Estate Board of New York, Inc., All rights reserved.







