Locations (Rental)
Adresse: ‎Brooklyn
Code postal: 11231
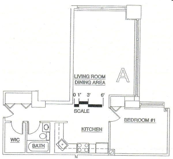
1 chambre, 1 sdb, 729 ft2
分享到
$3,850
€ 3,700 Euro
ID # RLS20072758
French
Are you the listing agent? Sign up to add your name and cell #
Corcoran Group Office: ‍212-355-3550

$3,850 - Brooklyn, Carroll Gardens, NY 11231|ID # RLS20072758

Property Description « French »

INCROYABLE Loft de Luxe 1 chambre. Le salon dispose de plafonds de 3,6 mètres, de parquets en bois et d'une exposition d'angle avec vue sur la cour commune. La cuisine ouverte pour chef comprend des appareils en acier inoxydable, de nombreux placards et des comptoirs en granit. D'énormes placards, dont un dressing, aménagé sur mesure pour un rangement facile. Une chambre à coucher de taille king complète le tout. L'immeuble dispose d'un portier 24h/24, d'une salle de sport, d'un espace de stockage pour vélos gratuit, d'un superintendant sur place, d'un stockage en sous-sol, d'une salle de lavage et d'une cour commune paysagée. Station Carroll F/G. Accès facile aux boutiques, parcs et restaurants. Animaux de compagnie cas par cas. Disponible le 1er avril.
Frais :
Frais de vérification de crédit de 20 $ par demandeur avec la demande de location.
Si approuvé par le propriétaire, premier mois de loyer de 4000 $ et dépôt de garantie de 4000 $ dus à la signature du bail.
Frais de l'immeuble :
Frais de traitement de la demande (non remboursables) 550,00 $
Frais de demande de location (non remboursables, dus à l'immeuble) 500,00 $
Frais de vérification de crédit/arrière-plan du locataire (non remboursables, requis) 150 $ par demandeur/adulte.
Dépôt de déménagement du locataire (remboursable, dû à l'immeuble) 500,00 $
Frais de déménagement du locataire (non remboursables, dus à l'immeuble) 500,00 $
Frais de traitement
Montant des frais de l'immeuble :
Frais d'initiation de demande unique pour le demandeur 120,00 $
Frais de soumission numérique pour le demandeur 65,00 $
Frais d'administration des frais de l'immeuble pour tout participant payant des frais de 5 % du total (hors frais de soumission numérique et d'initiation).

ID #‎ RLS20072758
DétailsCourt Street Lofts

1 chambre, 1 sdb, Intérieur: 729 ft2, 68m2, 124 unités dans le bâtiment, Le bâtiment a 10 étages
Âge de l'annonce (DOM): 12 jours
Année de construction
1918
Bus (MTA)
1 min du bus n° B57, B61
10 min du bus n° B103
Métro
Subway
4 min du F, G
Train (LIRR)1.3 miles de la gare « Atlantic Terminal »
2.6 miles de la gare « Nostrand Avenue »
Are you the listing agent? Sign up to add your name/photo/cell to your flyers. helpdesk@Samaki.com
房屋概況 Property Description « French »« ENGLISH »

INCROYABLE Loft de Luxe 1 chambre. Le salon dispose de plafonds de 3,6 mètres, de parquets en bois et d'une exposition d'angle avec vue sur la cour commune. La cuisine ouverte pour chef comprend des appareils en acier inoxydable, de nombreux placards et des comptoirs en granit. D'énormes placards, dont un dressing, aménagé sur mesure pour un rangement facile. Une chambre à coucher de taille king complète le tout. L'immeuble dispose d'un portier 24h/24, d'une salle de sport, d'un espace de stockage pour vélos gratuit, d'un superintendant sur place, d'un stockage en sous-sol, d'une salle de lavage et d'une cour commune paysagée. Station Carroll F/G. Accès facile aux boutiques, parcs et restaurants. Animaux de compagnie cas par cas. Disponible le 1er avril.
Frais :
Frais de vérification de crédit de 20 $ par demandeur avec la demande de location.
Si approuvé par le propriétaire, premier mois de loyer de 4000 $ et dépôt de garantie de 4000 $ dus à la signature du bail.
Frais de l'immeuble :
Frais de traitement de la demande (non remboursables) 550,00 $
Frais de demande de location (non remboursables, dus à l'immeuble) 500,00 $
Frais de vérification de crédit/arrière-plan du locataire (non remboursables, requis) 150 $ par demandeur/adulte.
Dépôt de déménagement du locataire (remboursable, dû à l'immeuble) 500,00 $
Frais de déménagement du locataire (non remboursables, dus à l'immeuble) 500,00 $
Frais de traitement
Montant des frais de l'immeuble :
Frais d'initiation de demande unique pour le demandeur 120,00 $
Frais de soumission numérique pour le demandeur 65,00 $
Frais d'administration des frais de l'immeuble pour tout participant payant des frais de 5 % du total (hors frais de soumission numérique et d'initiation).

Read the English version or choose another language

This information is not verified for authenticity or accuracy and is not guaranteed and may not reflect all real estate activity in the market. © 2026 The Real Estate Board of New York, Inc., All rights reserved.

Courtesy of Corcoran Group

公司: ‍212-355-3550



分享 Share
$3,850
Locations (Rental)
ID # RLS20072758
‎Brooklyn
Brooklyn, NY 11231
1 chambre, 1 sdb, 729 ft2


Listing Agent(s):‎
Are you the listing agent?
Sign up to add your name and cell #‎
Office: ‍212-355-3550
请说您在SAMAKI.COM看此广告
请也给我ID # RLS20072758