Adresse: ‎3515 Henry Hudson Parkway #5G
Code postal: 10463
2 chambre, 2 sdb, 1250 ft2
分享到
$369,000
€ 354,000 Euro
ID # 968381
French
Are you the listing agent? Sign up to add your name and cell #
Brown Harris Stevens Office: ‍718-878-1700

$369,000 - 3515 Henry Hudson Parkway #5G, Bronx, NY 10463|ID # 968381

Property Description « French »

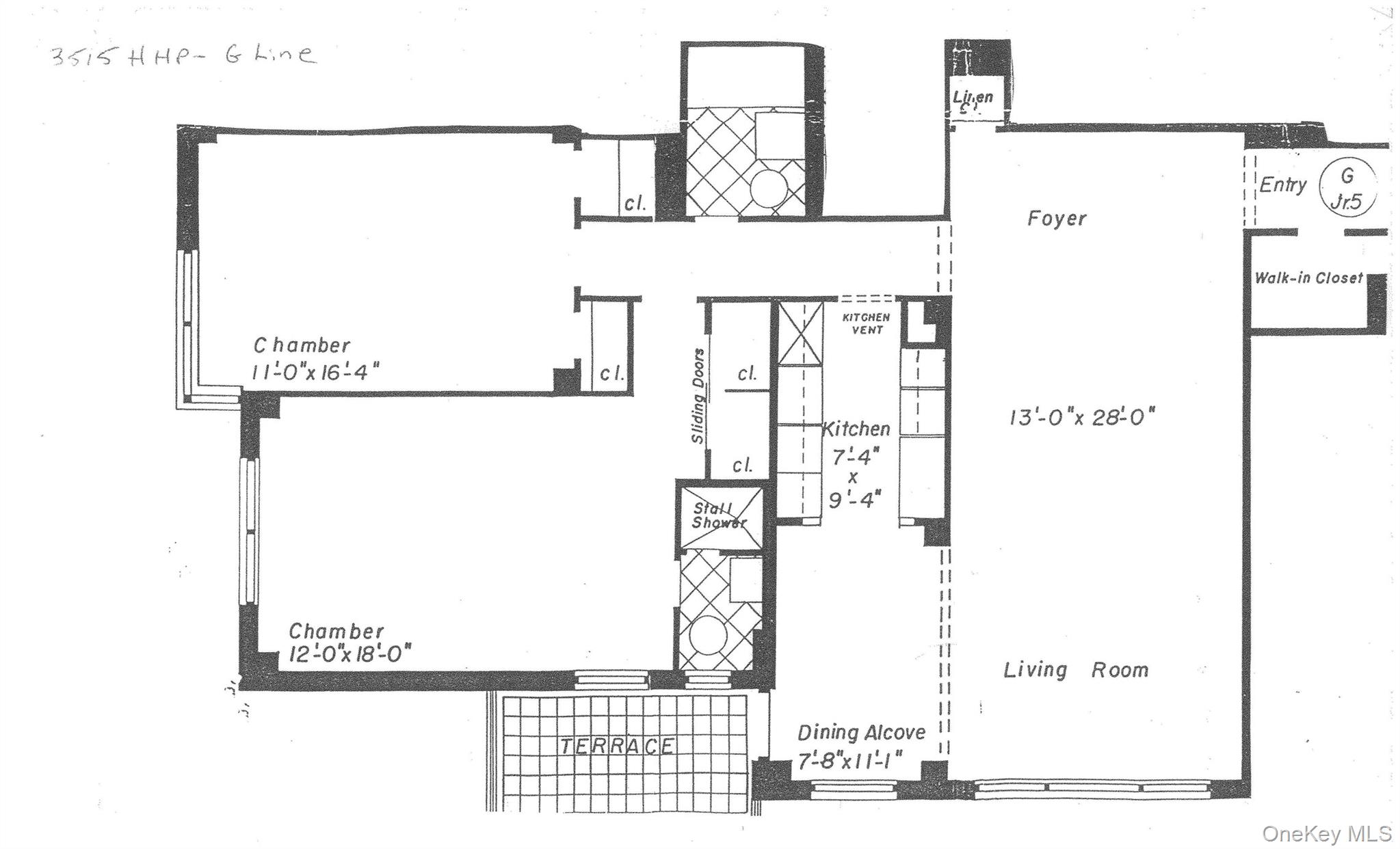
Bienvenue chez vous dans cet appartement lumineux et spacieux de deux chambres et deux salles de bain avec terrasse au Briarcliff. Le foyer d'entrée s'ouvre sur un salon spacieux avec un coin repas pouvant être fermé et utilisé comme troisième chambre. Cuisine de type couloir mise à jour avec passe-plat. Chambre principale avec salle de bain attenante et fenêtre. Vues sud-est et sud-ouest, y compris sur Seton Park. L'appartement vient d'être peint ; les parquets viennent d'être rénovés ; et il y a de nombreux placards, y compris un walk-in. Il y a une surcharge de combustible supplémentaire de 13,77 $/mois et une évaluation de 165,24 $/mois se terminant en décembre 2026. Les commodités du bâtiment incluent un concierge 3/4, un superintendant vivant sur place, un aire de jeux extérieure, une buanderie, un espace de rangement, un local à vélos, et un parking intérieur (sur liste d'attente). Emplacement pratique dans le centre de Riverdale près de Seton Park, de la bibliothèque, des magasins, des écoles, des restaurants et des lieux de culte. Immeuble acceptant les chiens. Transports en commun locaux et express, y compris l'arrêt de shuttle Metro North juste devant l'immeuble, et un accès facile à l'HHP rendent votre trajet agréable. Venez découvrir ce lieu de vie spécial.

ID #‎ 968381
Détails2 chambre, 2 sdb, lave-vaisselle, machine à laver, garage, climatiseur, Intérieur: 1250 ft2, 116m2
Âge de l'annonce (DOM): 1 jours
Année de construction
1954
Frais d'entretien
$1,613
Type de chauffageRadiant (Sol/Mur)
ClimatiseurClimatiseur mural
Are you the listing agent? Sign up to add your name/photo/cell to your flyers. helpdesk@Samaki.com
房屋概況 Property Description « French »« ENGLISH »

Bienvenue chez vous dans cet appartement lumineux et spacieux de deux chambres et deux salles de bain avec terrasse au Briarcliff. Le foyer d'entrée s'ouvre sur un salon spacieux avec un coin repas pouvant être fermé et utilisé comme troisième chambre. Cuisine de type couloir mise à jour avec passe-plat. Chambre principale avec salle de bain attenante et fenêtre. Vues sud-est et sud-ouest, y compris sur Seton Park. L'appartement vient d'être peint ; les parquets viennent d'être rénovés ; et il y a de nombreux placards, y compris un walk-in. Il y a une surcharge de combustible supplémentaire de 13,77 $/mois et une évaluation de 165,24 $/mois se terminant en décembre 2026. Les commodités du bâtiment incluent un concierge 3/4, un superintendant vivant sur place, un aire de jeux extérieure, une buanderie, un espace de rangement, un local à vélos, et un parking intérieur (sur liste d'attente). Emplacement pratique dans le centre de Riverdale près de Seton Park, de la bibliothèque, des magasins, des écoles, des restaurants et des lieux de culte. Immeuble acceptant les chiens. Transports en commun locaux et express, y compris l'arrêt de shuttle Metro North juste devant l'immeuble, et un accès facile à l'HHP rendent votre trajet agréable. Venez découvrir ce lieu de vie spécial.

Read the English version or choose another language

This information is not verified for authenticity or accuracy and is not guaranteed and may not reflect all real estate activity in the market. Listing courtesy of Brown Harris Stevens © 2026

Courtesy of Brown Harris Stevens

公司: ‍718-878-1700




分享 Share
$369,000
ID # 968381
‎3515 Henry Hudson Parkway
Bronx, NY 10463
2 chambre, 2 sdb, 1250 ft2


Listing Agent(s):‎
Are you the listing agent? Sign up to add your name and cell #‎
Office: ‍718-878-1700
请说您在SAMAKI.COM看此广告
请也给我ID # 968381