| ID # | 971689 |
| Détails | Âge de l'annonce (DOM): 1 jours |
| Taxes (par an) | $1,485 |
![]() |
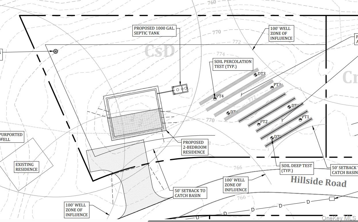
Une opportunité vous attend sur ce terrain résidentiel brut et non dégagé situé dans un quartier déjà établi. Profitez de la proximité pratique des principales routes de transport, y compris l'I-84, la Route 52 et la Route 6, ainsi que des magasins, des écoles, d'une bibliothèque et d'un service de train. Une étude de faisabilité préliminaire a été réalisée et est fournie à titre informatif. La propriété n'est pas approuvée par le Bureau de la Santé ; les acheteurs souhaitant obtenir des approbations doivent effectuer leurs propres vérifications, ainsi que consulter le service des bâtiments pour déterminer ce qui peut ou ne peut pas être construit sur ce terrain.
Opportunity awaits on this raw, uncleared Residential Parcel located in an already established neighborhood. Enjoy convenient proximity to major commuter routes including I-84, Route 52 and Route 6, as well as shopping, schools, library, and train service. A draft Feasibility Study has been completed and is provided for informational purposes. The property is not Board of Health approved; purchasers seeking approvals must conduct their own due diligence, as well as conferring w/the Building Dept. to help determine what can and cannot be built on this lot.
This information is not verified for authenticity or accuracy and is not guaranteed and may not reflect all real estate activity in the market. Listing courtesy of Keller Williams Realty Partner © 2026







