| ID # | RLS20058299 |
| Détails | 6 chambre, 4 sdb, 1 demi-sdb, lave-vaisselle, machine à laver, sèche-linge, Intérieur: 2960 ft2, 275m2, 2 unités dans le bâtiment, Le bâtiment a 3 étages Âge de l'annonce (DOM): 296 jours |
| Année de construction | 1920 |
| Taxes (par an) | $2,052 |
| Bus (MTA) | 1 min du bus n° Q24 |
| 2 min du bus n° B7 | |
| 3 min du bus n° B26 | |
| 6 min du bus n° B20, B52 | |
| 7 min du bus n° B47, B60 | |
| Métro | 1 min du J |
| 7 min du Z | |
| Train (LIRR) | 1.1 miles de la gare « East New York » |
| 1.8 miles de la gare « Nostrand Avenue » | |
![]() |
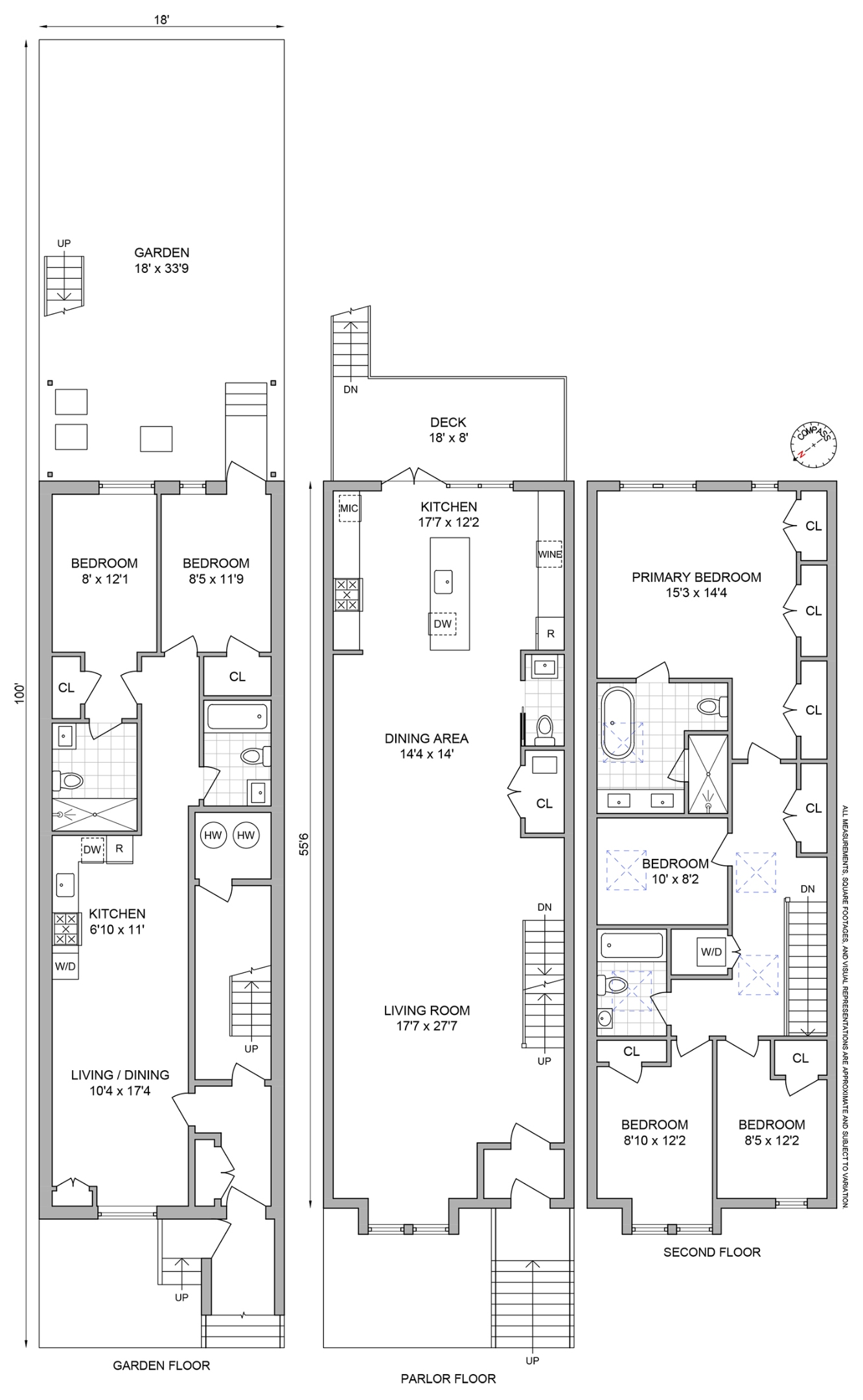
Construit à l'origine en 1920, le 1044 Jefferson Avenue a été méticuleusement transformé en une magnifique résidence à deux familles qui strike le parfait équilibre entre charme classique et sophistication contemporaine. S'étendant sur trois étages sur un terrain de 18' x 100' et construit de 18' x 58', cette propriété époustouflante offre six chambres, quatre salles de bain complètes, un cabinet de toilette, un jardin privé, une terrasse arrière, et un appartement de jardin de deux chambres générant des revenus.
En entrant dans le duplex du propriétaire, vous êtes accueilli par des parquets en chêne blanc à motif en chevrons et une lumière abondante orientée à l'est, créant une sensation immédiate de chaleur et d'ouverture. L'espace de vie et de salle à manger à aire ouverte est ancré par une cuisine saisissante, dotée de comptoirs en quartz, d'un grand îlot avec cascade, de mobilier sur mesure, et d'appareils de premier choix : un cuisinière à gaz Bosche à six brûleurs, un robinet de remplissage de casserole, un réfrigérateur à portes françaises intégré Bosche, un four à micro-ondes Sharp, un réfrigérateur à vin Summit, un lave-vaisselle Bosche intégré, et un évier de ferme surdimensionné. De grandes portes vitrées doubles hors de la cuisine mènent à une vaste terrasse parfaite pour recevoir ou profiter d'un matin tranquille surplombant le jardin exposé au sud.
À l'étage, vous trouverez quatre chambres aérées et deux salles de bain complètes. Le dernier étage éclairé par des fenêtres de toit—doté de cinq puits de lumière—est baigné de lumière naturelle tout au long de la journée. La suite principale, située à l'arrière de la maison, offre un refuge paisible avec un mur de placards et une salle de bain attenante luxueuse complète avec une double vasque, une baignoire balnéo et une douche à pluie fermée par un verre.
Le niveau du jardin propose un appartement séparé, soigneusement conçu, de deux chambres et deux salles de bain, avec un accès privé au jardin arrière—idéal pour générer des revenus locatifs ou servir de suite pour les beaux-parents ou les invités.
Cette maison exceptionnelle est située au cœur de Bushwick, à quelques pas des endroits les plus appréciés du quartier, notamment Money Cat, Irving General et Father Knows Best, avec un accès facile aux parcs locaux comme Irving Square. Des options de transport en commun pratiques via les lignes de métro L et J/M et la proximité de l'aéroport JFK (à seulement 20 minutes) complètent l'emplacement gagnant de cette maison.
De ses finitions haut de gamme à son agencement intelligent et ses options de vie flexibles, le 1044 Jefferson Avenue répond à tous les critères. Avec la climatisation centrale, des planchers en chêne blanc à travers toute la maison, des œuvres en bois sur mesure, et des touches de design intemporelles, cette résidence est véritablement clé en main, prête à être habitée et aimée.
Certaines photos ont été virtuellement mises en scène.
Originally built in 1920, 1044 Jefferson Avenue has been meticulously transformed into a beautifully designed two-family residence that strikes the perfect balance between classic charm and contemporary sophistication. Spanning three stories on an 18' x 100' lot and built 18' x 58', this stunning property offers six bedrooms, four full bathrooms, one powder room, a private garden, a rear deck, and an income-producing two-bedroom garden apartment.
Upon entering the owner's duplex you are welcomed by the herringbone-patterned white oak floors and abundant Eastern light creating an immediate sense of warmth and openness. The open-concept living and dining space is anchored by a showstopping kitchen, featuring quartz countertops, a large waterfall island, custom cabinetry, and top-of-the-line appliances: a six-burner Bosche gas stove, pot filler, integrated French Door Bosche refrigerator, Sharp microwave, Summit wine fridge, integrated Bosche dishwasher, and an oversized farmhouse sink. Full-glass double doors off the kitchen lead to the spacious parlor deck, perfect for entertaining or enjoying a quiet morning overlooking the Southfacing garden.
Upstairs, you will find four airy bedrooms and two full baths. The skylit top floor—featuring five skylights—is bathed in natural light throughout the day. The primary suite, located at the rear of the home, offers a tranquil retreat with a wall of closets and a luxurious en-suite bathroom complete with a double vanity, soaking tub, and glass-enclosed rain shower.
The garden level offers a separate, thoughtfully designed two-bedroom two bathroom apartment, with private access to the backyard—ideal for generating rental income or serving as an in-law or guest suite.
This exceptional home is set in the heart of Bushwick, moments from the neighborhood’s most beloved hotspots, including Money Cat, Irving General, and Father Knows Best, with easy access to local parks like Irving Square. Convenient public transit options via the L and J/M subway lines and proximity to JFK Airport (just 20 minutes away) round out this home’s winning location.
From its high-end finishes to its smart layout and flexible living options, 1044 Jefferson Avenue delivers on every front. With central air conditioning, white oak flooring throughout, custom millwork, and timeless design touches throughout the home, this residence is truly turnkey and ready to be lived in and loved.
Some photos have been virtually staged.
This information is not verified for authenticity or accuracy and is not guaranteed and may not reflect all real estate activity in the market. ©2025 The Real Estate Board of New York, Inc., All rights reserved.







