| ID # | RLS20069597 |
| Détails | STUDIO, lave-vaisselle, garage, Intérieur: 660 ft2, 61m2, 439 unités dans le bâtiment, Le bâtiment a 25 étages Âge de l'annonce (DOM): 50 jours |
| Année de construction | 1933 |
| Frais d'entretien | $633 |
| Taxes (par an) | $8,676 |
| Métro | 2 min du 2, 3 |
| 3 min du A, C | |
| 4 min du J, Z | |
| 5 min du 4, 5 | |
| 6 min du R, W | |
| 7 min du 6, E | |
| 8 min du 1 | |
![]() |
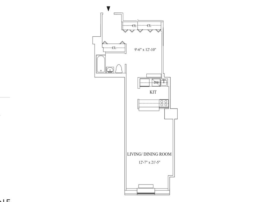
Condo loft de luxe spacieux de 60 m² avec de hauts plafonds voûtés de 3,2 mètres au 99 John Street. Ce foyer soigneusement conçu comprend une alcôve de sommeil généreuse qui peut facilement accueillir un lit queen size et dispose de son propre placard, créant ainsi une zone de chambre distincte et confortable.
Le salon expansif de 6,5 mètres de long offre une flexibilité exceptionnelle, avec un espace suffisant pour un coin salon complet, une table à manger et un bureau à domicile. Les sols en chêne doré, les fenêtres surdimensionnées et la lumière naturelle abondante renforcent la sensation d'ouverture et d'aération dans tout l'espace. Plusieurs placards supplémentaires dans le couloir offrent un excellent rangement.
La cuisine ouverte pour le chef est équipée d'appareils électroménagers en acier inoxydable haut de gamme, y compris un lave-vaisselle et un micro-ondes, d'armoires blanches à haute brillance et de plans de travail élégants en granit gris ardoise. La salle de bains en marbre présente des finitions modernes et épurées.
Services du condo au 99 John Street
- Concierge à plein temps & Service de conciergerie 24 heures sur 24
- Centre de remise en forme / Salle de gym
- Salon des résidents / Salle de billard
- Terrasse paysagée sur le toit avec cabanes privées
- Jardin et espace barbecue extérieur
- Salle de jeux pour enfants
- Espace extérieur commun / Jardin zen
- Stockage à froid
- Laveries dans l'immeuble
- Service de lavage et nettoyage à sec (bureau)
- Parking sur place disponible (supplément, selon disponibilité)
- Salle de stockage pour vélos (supplément, selon disponibilité)
- Ascenseur
Situé au cœur du quartier financier, vos envies de culture, cuisine et shopping de classe mondiale seront comblées. Plongez dans les offres de détail renommées de Brookfield Place et Occulus, et savourez les délices culinaires de nombreux restaurants étoilés au Michelin, le tout à quelques blocs de votre résidence. Whole Foods et Grestides sont commodément situés à proximité. Accès facile aux lignes de métro 1, 2, 3, 4, 5, R, W, A, C, J et Z, au train PATH vers le New Jersey, et au ferry Wall St. NYC.
Spacious 660 SF luxury condo loft with soaring 10.5 ft vaulted ceilings at 99 John Street. This thoughtfully designed home features a generous sleeping alcove that easily fits a queen-size bed and includes its own closet, creating a distinct and comfortable bedroom area.
The expansive 21.5-foot-long living room offers exceptional flexibility, with ample space for a full seating area, dining table, and home office setup. Golden oak hardwood floors, oversized windows, and abundant natural light enhance the open, airy feel throughout. Multiple additional hallway closets provide excellent storage.
The chef’s pass-through kitchen is outfitted with top-of-the-line stainless steel appliances, including a dishwasher and microwave, high-gloss white cabinetry, and elegant slate-gray granite countertops. The marble bathroom features sleek, modern finishes.
99 John Street Condo Amenities
-Full-Time Doorman & 24-Hour Concierge
-Fitness Center / Gym
-Residents’ Lounge / Billiards Room
-Landscaped Roof Deck with Private Cabanas
-Garden & Outdoor BBQ Area
-Children’s Playroom
-Common Outdoor Space / Zen Garden
-Cold Storage
-Laundry Rooms in Building
-Drop-Off Laundry & Dry Cleaning Service (Lobby)
-On-Site Parking Available (additional, upon availability)
-Bike Room / Storage (additional, upon availability)
-Elevator
Situated in the heart of the Financial District, your desires for culture, cuisine, and world-class shopping will be fulfilled. Immerse yourself in the renowned retail offerings at Brookfield Place and Occulus, and savor the culinary delights of numerous Michelin-rated restaurants, all within a few blocks of your residence. Whole Foods and Grestides grocery are all conveniently located nearby. Easy access to 1, 2, 3, 4, 5, R, W, A, C, J, & Z trains, PATH Train to New Jersey, and Wall St. NYC Ferry.
This information is not verified for authenticity or accuracy and is not guaranteed and may not reflect all real estate activity in the market. © 2026 The Real Estate Board of New York, Inc., All rights reserved.







